T959 | Rustico / Casale in Vendita
Trattative Riservate
- Prezzo: Trattative Riservate
- Metratura: 476 mq
- Anno: 1982
- Piano: 0 su 1
- Stato interno: Ristrutturato
- Camere: 8
- Cucina: Semi-abitabile
- Bagni: 2
- Box: Box singolo
- Riscaldamento: Autonomo
- Aria condizionata: Sì
- Classe energetica: G
- IPE: 400 kWh/mqa
Descrizione dell'immobile
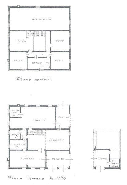
Santa Croce - casa indipendente con giardino Vendiamo casa in ottima zona residenziale di assoluta tranquillità, nelle campagne di Santa Croce. L'immobile è stato ristrutturato completamente nel 1982, presenta ottime finiture, parco con annesso bassocomodo adibito a garage e ricovero atrezzi. Gli oltre 470 mq dell'abitazione si dispongono su due livelli e si trovano su un lotto di 2000 mq circa. La casa è composta da: ingresso, soggiorno, cucina, tre camere, studio, bagno, ripostiglio, giardino, cantina, lavanderia, centrale termica, sottotetto, box doppio, tinello, due portici. Tratt. Riservata. Per informazioni contattare Immobiliare DIERRE 059.69.00.29 info@immobiliaredierre.eu Classe Energetica G (400 kWh/mqa)Cerca il tuo immobile
