T954 | Casa indipendente in Vendita | SUD
€ 350.000
- Prezzo: € 350.000
- Metratura: 400 mq
- Anno: 1989
- Piano: 0 su 1
- Stato interno: Originale / Abitabile
- Camere: 8
- Cucina: Semi-abitabile
- Bagni: 5
- Box: Box singolo
- Riscaldamento: Autonomo
- Aria condizionata: Sì
- Classe energetica: G
- IPE: 200 kWh/mqa
Descrizione dell'immobile
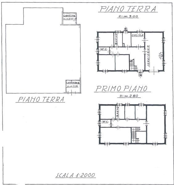
CARPI ZONA SUD - casa singola con laboratorio da ristrutturare. Proponiamo in vendita casa singola con adiacente laboratorio, su un lotto di terreno di mq 3250. La casa necessita di manutenzione essendo originale degli anni 90, ma si trova comunque in buone condizioni. Grazie alla sua disposizione è adatta alla convivenza di due nuclei famigliari, è infatti composta da sei camere, cinque bagni, cucina, soggiorno, due uffici, cantina, lavanderia, due saloni e mansarda. La richiesta è di € 750.000 per informazioni contattare Immobiliare DIERRE 059.69.00.29 info@immobiliaredierre.eu Classe Energetica G (200 kWh/mqa)
Chi ha visto questi immobili ha guardato anche:
CARPI ZONA NORD - casa singola con laboratorio, area cortiliva e pannelli
Vendiamo casa singola con...
Carpi Centro - casa singola da ristrutturare con giardino ...
In zona piacevolmente tranquilla a Santa Croce di Carpi l'Immobiliare Dierre vende casa singola con ...
Carpi Nord - casa singola con giardino privato
L'Immobiliare Dierre vende casa indipendente in zona ...
A Cibeno di Carpi l'immobiliare Dierre propone in vendita villa abbinata di ampie metrature e giardi...
L'Immobiliare Dierre propone in vendita in zona nord di carpi casa indipendente in pietra faccia vis...
Cerca il tuo immobile
