UA316 | Ufficio / Studio in Affitto | Centro Storico
€ 1.950
- Prezzo: € 1.950
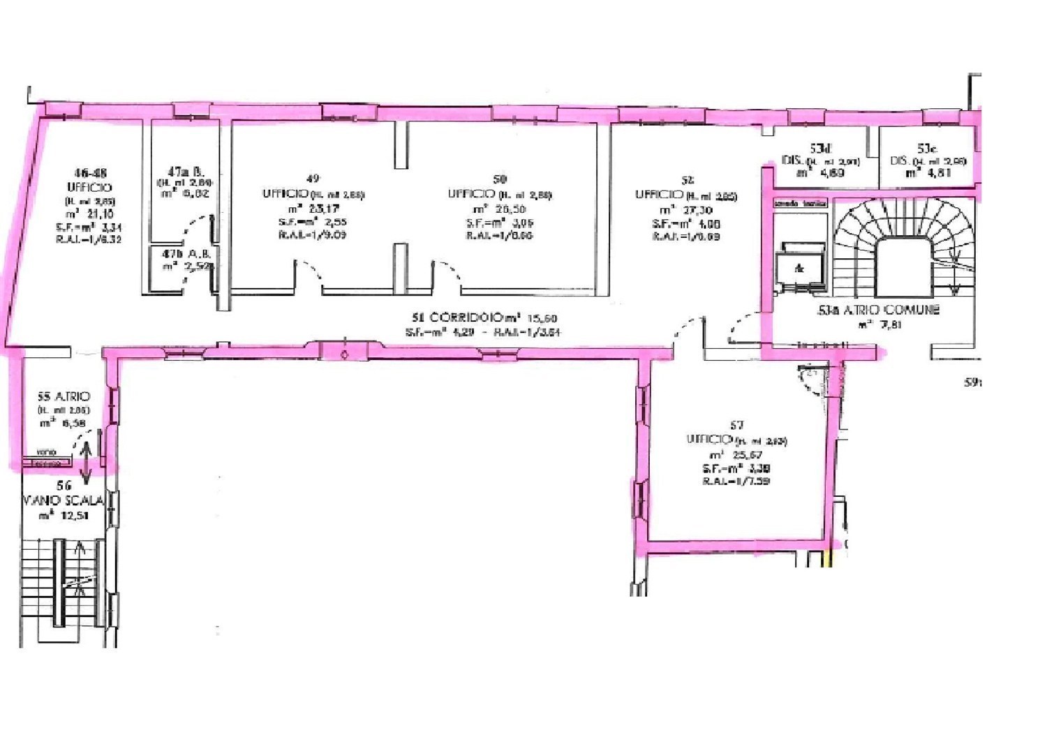
- Metratura: 198 mq
- Piano: 1 su 2 con ascensore
- Stato interno: Buono / Discreto
- Camere: 2
- Bagni: 2
- Riscaldamento: Centralizzato
- Aria condizionata: Sì
- Spese condominiali: € 3.200
- Arredato: Parzialmente
- Classe energetica: G
- IPE: 180 kWh/mca
Descrizione dell'immobile
In palazzo signorile nel centro storico di Carpi proponiamo in affitto ufficio di ottima immagine commerciale, al primo piano con ascensore. Le utenze di gas e raffrescamento sono centralizzate e a gestione autonoma. L'Immobile sarà disponibile da gennaio 2018. Così composto: due bagni, archivio, cinque uffici. Canone di locazione € 1.950 per informazioni chiamare Immobiliare DIERRE 059.69.00.29 info@immobiliaredierre.eu
Chi ha visto questi immobili ha guardato anche:
UA502 - CARPI ZONA CENTRO - Affittiamo ufficio al primo piano composto da: ingresso, studio, bagno,...
UA309 - CARPI ZONA CENTRO - Recupero di un complesso edilizio tutelato dalla Sovrintendenza ai Beni...
CARPI ZONA SUD - ingresso, ambiente unico, due bagni. € 2.100 Classe Energetica G (400 kWh/mca)
Cerca il tuo immobile
