Carpi
Descrizione
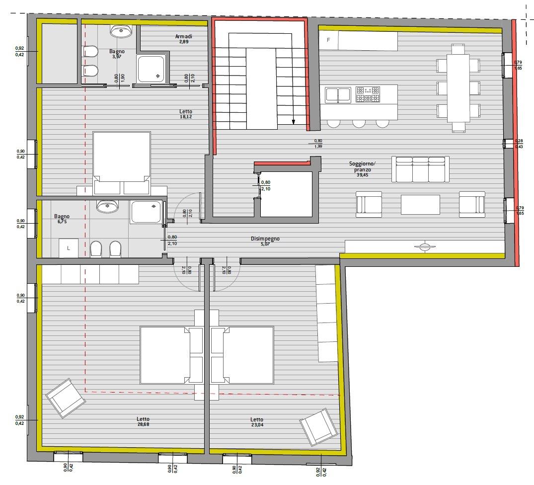
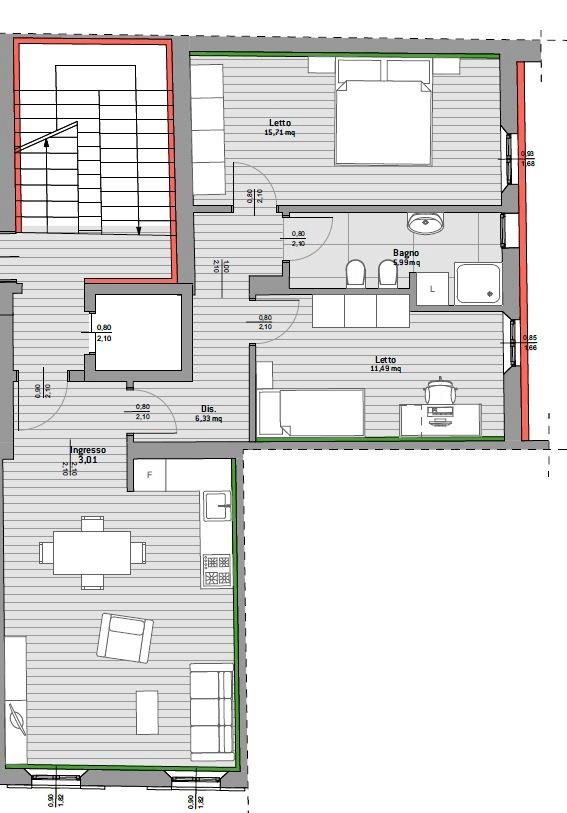
L'Immobiliare Dierre presenta prossima ristrutturazione conservativa di fabbricato residenziale, in centro storico a Carpi, a pochi passi dalla bellissima Piazza dei martiri. L'immobile sarà completamente rivisitato, creando sei soluzioni di varie metrature e con le più moderne tecnologie costruttive. Ultime tre soluzioni disponibili. Possibilità di usufruire di incentivi fiscali per la ristrutturazione. Per informazioni contattare Immobiliare DIERRE 059.69.00.29 info@immobiliaredierre.eu Classe Energetica A (32 kWh/mqa)Cerca il tuo immobile
